一乐电子

 找回密码
 请使用微信账号登录和注册会员

QQ登录

只需一步,快速开始

微信扫码登录

手机号码,快捷登录

手机号码,快捷登录

搜索
查看: 46374|回复: 181

十元左右成本的数显白光控制器

 火... [复制链接]
发表于 2012-4-23 15:56 | 显示全部楼层 |阅读模式
设计功能:
1.3位数码管显示温度
2.三按键操作 (加, 减, 设置)
3.热电偶冷端温度手动设置(按住 加键开机)
4.控温范围 100~420℃
5.温度稳定 ±10℃(无负荷时)
6.PWM控制加热功率
7.接近设定温度(大约50度)时使用PID算法控制加热(200ms间隔), 其它时间使用固定加热长度(加热500ms, 检测一次)
8.10组常用温度, 常规状态下按加,减键切换
9.可通过图形化联机软件校准系统参数与PID参数(需要串口版本固件)
10.按住 设置键开机进入系统参数设置
11.按住 减键开机快速恢复默认设置
12.使用中按 设置键显示当前设定温度2秒(最高位小数点亮)
13.在显示当前设定温度时再按设置键进入温度编辑状态, 编辑完成后10组温度值会按从低到高排序
14.记忆最后选择的温度索引 使用均衡写入 (理论写入寿命 100000 * 512 次)  
15.运行状态下长按设置键进入休眠状态(恒温到100度), 再按设置键恢复到正常状态 (中间小数点亮)
16.休眠状态下长按设置键进入关闭状态(关闭T12输出), 再按设置键恢复到正常状态

屏幕参数解释
P01 AD调零值 用于在单电源情况下将ad输出调0
P02 参考端(热电偶冷端)温度
P03 AD值到电压值比例 单位uv
P04 比例常数
P05 积分常数
P06 微分常数

MCU资源使用
Program Size: data=85.4 xdata=0 code=3985
型号 Flash SRAM 定时器 EEPROM
STC15F104E 4K 128 2 1K

已下功能因为代码空间不足不能实现
1~60分钟自动休眠
1~180分钟自动关闭(休眠后计时)
ad_voltageScale 的精度从uv增加到0.1uv

2012-04-15
+完成基本UI相关函数
+eeprom 保存参数
+开机按"+"键进入冷端温度设置
+开机按"SET"键进入系统设置
*优化代码减少代码长度
+完成全部基本功能

2012-04-18
*设置系统参数 "AD值到电压值比例" 修改为8秒加热时间
*修正"P03"默认值不为自动计算值的不方便操作

2012-04-21
*修改为ADC 12bit版本
*使用新热电偶分度表
-代码空间限制, 取消系统参数设置, 只能由上位机初始化

2012-04-22
*修改休眠温度为200度
+自动关机30分钟内温度变化范围小于正负1.5度关机
+ADC返回数值数字滤波
*恢复默认设置参数为
调零:296 AD对应电压:4358 冷端参考:25 PID: 32 12 50
温度列表: 200 220  ...380
默认索引: 0
+开启看门狗 溢出时间约 0.505s


当前版本 1.02 Build 120422


IMG_20120423_152642.jpg

IMG_20120423_152726.jpg

IMG_20120423_152852.jpg

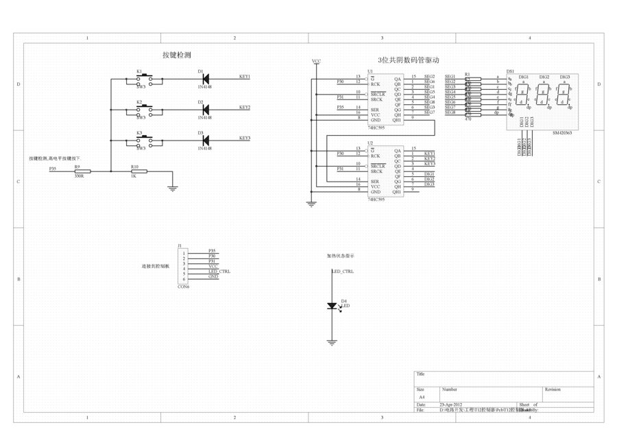
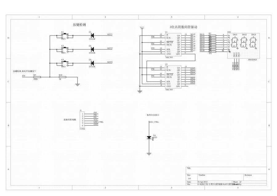
按键与显示.png

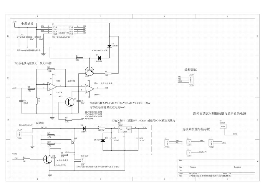
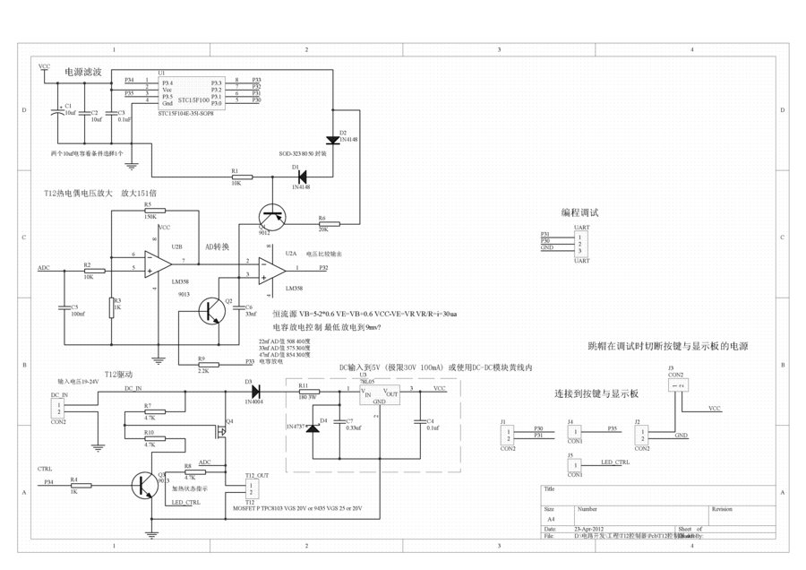
控制与驱动.png

一份老的元件清单仅供参考
art Type        Designator        Footprint        Description        单价        
0.1uF        C8        805        Capacitor        ¥0.02        
0.1uf        C9        805        Capacitor        ¥0.02        
0.33uf        C12        805        Capacitor        ¥0.02        
1K        R21        805                ¥0.02        
1K        R23        805                ¥0.02        
1K        R22        805                ¥0.02        
1N4148        D8        805        Diode        ¥0.08        
1N4148        D9        805        Diode        ¥0.08        
1N4148        D6        805        Diode        ¥0.08        
1N4148        D5        805        Diode        ¥0.08        
1N4148        D7        805        Diode        ¥0.08        
3K        R28        805                ¥0.02        
4.7K        R27        805                ¥0.02        
4.7K        R26        805                ¥0.02        
10K        R12        805                ¥0.02        
10K        R11        805                ¥0.02        
10uf        C7        RB4.2        Capacitor        ¥0.05        贴片 805 0.03 钽电容 1206 0.35
20K        R25        805                ¥0.02        
22nf        C11        805        Capacitor        ¥0.02        
74HC595        U5        SO-16        8-BIT SFT REG WIRTH OUTPUT LCH        ¥0.18        国产
74HC595        U6        SO-16        8-BIT SFT REG WIRTH OUTPUT LCH        ¥0.18        
78L05        U8        SOT-89        3-Terminal Positive Voltage Regulator        ¥0.40        
100nf        C10        805        Capacitor        ¥0.02        
150K        R24        805                ¥0.02        
330R        R29        805                ¥0.02        
470        R15        805                ¥0.02        
470        R16        805                ¥0.02        
470        R17        805                ¥0.02        
470        R20        805                ¥0.02        
470        R19        805                ¥0.02        
470        R18        805                ¥0.02        
470        R13        805                ¥0.02        
470        R14        805                ¥0.02        
9012        Q5        SOT23        PNP Transistor        ¥0.08        
9013        Q6        SOT23        NPN Transistor        ¥0.08        
9013        Q8        SOT23        NPN Transistor        ¥0.08        
CON2        J7        SIP-2        Connector               
CON2        J6        SIP-2        Connector               
LED        D10        LED                ¥0.04        红色
LM358        U7        SO-8        Fast Settling Dual Operational Amplifier        ¥0.19        国产
MOSFET P TPC8103        Q7        SO-8                ¥0.80        拆机 9435台产 0.8
SM420363        DS2        JM-S03631A-B        共阴3位数码管 SM420363 0.36英寸数码管        ¥1.50        3361AS共阴3位数码管 0.36英寸红色
STC15F104E-35I-SOP8        U4        SO-8        STC15F1xx 8Pin        ¥2.20        
SW3        K6        SW_GFG005        四角开关               
SW3        K4        SW_GFG005        四角开关               
SW3        K5        SW_GFG005        四角开关               
T12        J8        SIP-2        Connector               
UART        J5        SIP-3        Connector               

                         总计:        ¥6.57        

固件下载与调校教程见 http://bbs.mydigit.cn/read.php?tid=396818&page=1

评分

参与人数 1一乐金币 +5 收起 理由
bighuasheng + 5 很给力!

查看全部评分

 楼主| 发表于 2012-4-23 15:59 | 显示全部楼层
1.02 Build 120422.rar (304.83 KB, 下载次数: 1140) 固件 1.02 Build 120422


感谢3AG1的提醒 关于vgs
回复

使用道具 举报

发表于 2012-4-23 16:12 | 显示全部楼层
lz出套件么?如出报名。。。
回复

使用道具 举报

发表于 2012-4-23 16:19 | 显示全部楼层
为什么不弄个20脚的单片机,那样595也省了,容量也更大了
回复

使用道具 举报

发表于 2012-4-23 16:21 | 显示全部楼层
无能力D pcb板,凑元件太费力,求套件
回复

使用道具 举报

发表于 2012-4-23 16:23 | 显示全部楼层
支持编码器调节温度不,楼主出套件吗?
回复

使用道具 举报

发表于 2012-4-23 16:25 | 显示全部楼层
回复 1# goodcode


  手头元件不足,LZ可能备足料,出套件
回复

使用道具 举报

发表于 2012-4-23 16:29 | 显示全部楼层
关注,求套件。凑元件的成本太高了
回复

使用道具 举报

发表于 2012-4-23 16:34 | 显示全部楼层
求楼主出套件,这是造福坛友的好东东啊……
回复

使用道具 举报

发表于 2012-4-23 16:35 | 显示全部楼层
强   楼主这一出数显白光就真的变白菜啦
回复

使用道具 举报

本版积分规则

QQ|一淘宝店|手机版|商店|一乐电子 ( 粤ICP备09076165号 ) 公安备案粤公网安备 44522102000183号

GMT+8, 2026-4-18 16:53 , Processed in 0.041193 second(s), 33 queries , Gzip On.

Powered by Discuz! X3.5

© 2001-2025 Discuz! Team.

快速回复 返回顶部 返回列表